Arabianranta

An award-winning mid-rise housing project in Helsinki utilizes pioneering data management software as it entrusts residents with meaningful agency over their dwellings’ layouts and finishes.

The sliding privacy screens on large, south-facing balconies. (Photo credit Petri Viita, ArkOpen Ltd.)

PlusHome Pilot (2003)

Helsinki, Finland

Esko Kahri, Petri Viita, and Juhani Väisänen of ARK Oy Kahri&Co (later ArkOpen)


The Challenge

The Finnish housing provider SATO held a competition to design a multi-unit block of affordable, highly individualized apartments at scale without sacrificing structural clarity, code compliance, or construction efficiency.

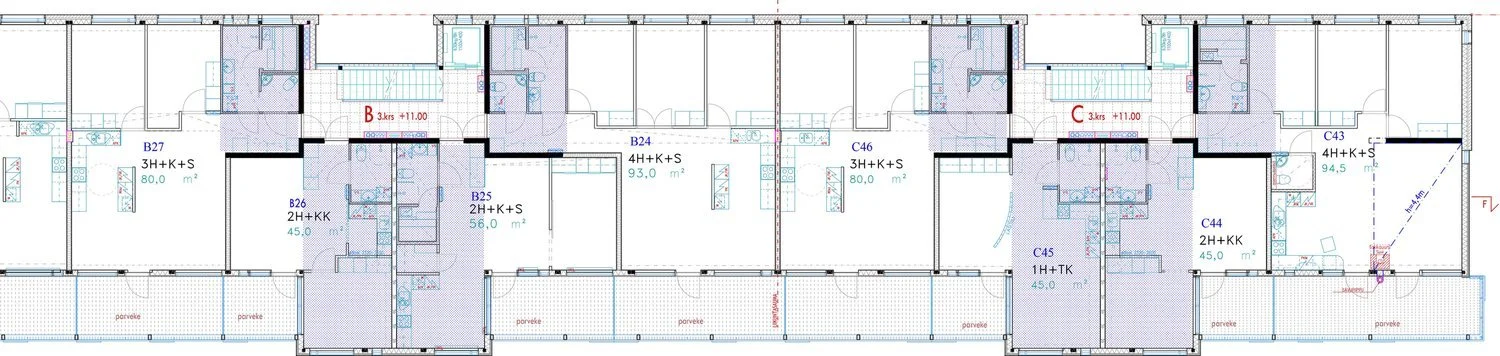
Drawing showing how, within a simple base building structure, a large variety of dwelling unit sizes and layouts could be offered. (Credit ArkOpen Ltd.)

Key Issues

Structural floor spans and service zones needed to support varied apartment widths and wet zone placements.

Ensuring electrical, plumbing and mechanical systems would be accessible and upgradeable without disruption of spaces below.

Longitudinal flexibility required an external load-bearing structure to free interior walls from structural roles.

Buyers needed clear pricing for changes in layout and finishes to make informed design decisions.


The Ambitions 

The PlusHome management model would provide seamless information sharing among stakeholders, empowering buyers with real, consequential design choices—at both the spatial and material level—within a base building engineered for flexibility and long-term adaptability.

Strategic Goals

Allow shifting apartment widths across floors.

Support long-term adaptability with wide bays and room for future bathroom and kitchen changes.

Create a range of unit types supporting household diversity and life-cycle change.

Allow buyers to combine units and select from multiple floor plans.

Use factory-built elements where feasible (to maintain construction speed and predictability).


The Realization

The two six-story buildings were framed with longitudinal steel walls, precast concrete slabs, and “upside-down” floors where bathrooms and kitchens were anticipated, freeing the interior to accept a wide variety of layouts. Buyers were then able to choose their apartment sizes and layouts months after construction had begun.

Vital Design Choices

Steel load-bearing outer walls allowed unit width and layout to vary freely across floors.

Clear separation of infill and support for every stakeholder to understand.

Accessible wet zones used removable top-floor slabs and slotted beams to host horizontal plumbing serving spaces above.

Removable interior walls featured cavities for easy wiring and reconfiguration.

Double-height spaces and attached workshops supported diverse types of residents.

Varied facade window layouts easily matched distinctive dwelling unit boundaries, made possible by the load-bearing outer walls.

Balconies and sunshades were adjustable, giving residents agency over their privacy and sunlight.

The PlusHome digital interface gave buyers the real-time cost implications of every finish, fixture, and layout change.

The two-part Kvantti-zone floor system under construction. The ‘upside-down’ floor – also shown in Figure 6 – was only used in the zones where bathrooms and kitchens were expected to be placed. The rest of the floor structure was hollow-core precast concrete slabs spanning the entire width of the building and resting on the steel façade. (Photo credit Petri Viita, ArkOpen Ltd.)


The Results

The Arabianranta PlusHome project delivered 77 individualized, owner-occupied units. It was named Finland’s Best New Building in 2005 by the Association of Civil Engineers for its architectural, structural, and social merits.

Promising Outcomes

Buyers have configured their own unique homes, improving satisfaction and long-term usability.

The steel-framed support has held up well under wide user variation, with no structural compromise.

Infill systems remain accessible, supporting ongoing unit renovations.

The project proved viable at scale, avoiding delays despite deep customization.

The PlusHome digital platform minimized errors with automated ordering and quantity tracking.

 

The Arabianranta PlusHome project demonstrated that Open Building with thoughtful engineering and responsive workflows makes mass housing both personal and efficient.

  • Project location

    Kaj Frankinkatu, Helsinki, Finland

    Chronological information

    Completed in 2005

    Project design team

    Architects Esko Kahri and Petri Viita (Kahri and Co.), Petri Viita, Juhani Väisänen and PlusHome Ltd. project team authors Esko Enkovaara and Timo Taiponen.

    Number of dwelling units

    77

    Project site / building area

    site area: 3900 m² / floor area 6600 m²

    Project client

    Private developer SATO

    Structure type

    Steel frame, hollow core slabs + “upside- down floor system”

    Installation utilities

    Horizontal piping installation and piping layout per dwelling is installed in a wet zone in an “upside- down floor system,” with adaptable electric distribution system in all partition walls.

    Infill system/ approach

    Clear separation of infill and support. The information system was developed to coordinate inhabitants, designers, client and developers.

Previous
Previous

Sydhavnen (Sluseholmen)

Next
Next

Tila